Township of Blandford-Blenheim Council approved in principle a zone change and supported a draft plan of condominium in the village of Drumbo during its regular Council meeting on Wednesday, November 19, 2025.
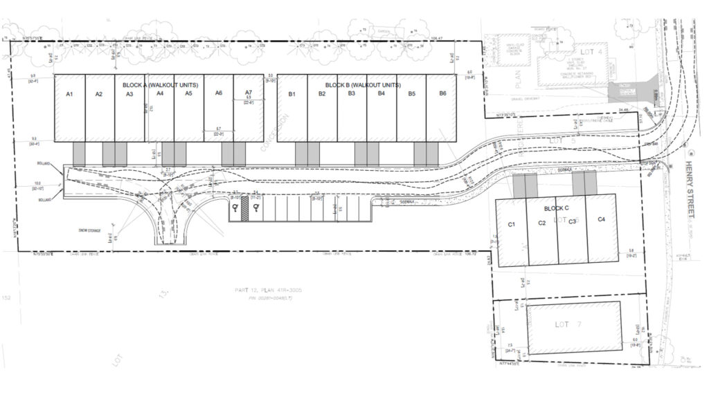
The subject lands are located on the west side of Henry Street, just north of Drumbo Park, and are approximately 1.4 acres in size.
While the vacant land is currently zoned Residential Type 1 (R1) and designated medium density in the Official Plan, the developer has applied to change the zoning to Special Residential Type 3 (R3-sp).
The report, submitted by Dustin Robson, the Township’s Development Planner, states that the special provision on the zoning would permit smaller yards, different parking allowances, and modified landscaping requirements.
The proposed development would feature a condominium of 17 bungalow-style townhomes spread over three blocks. Thirteen of the units, located within the two northern blocks, would have walkout basements, while the four closest to Henry Street would not.
An internal condominium road would connect to Henry Street and includes a turnaround area. Each unit would have two parking spaces, one in the driveway and one in the garage, and there would also be 11 spaces in a communal parking area, two of which would be accessible.
Robson said that overall, staff agreed the application and plan meets the intent of the provincial planning statement, offers alternative forms of housing, meets the expectations of the medium density designation, efficiently uses the land and existing infrastructure and that the special provisions are minor and acceptable.
“In this instance we’re in support of what’s being proposed,” he said. “So we are here today to recommend that Council approve in principle the zone change, while also advising Council that it is in support of the draft plan condominium that’s being proposed for 17 units.”
Following Robson’s presentation, members of the public later had the opportunity to address their concerns with the development.
Tom Dezell, who lives nearby the proposed condominium, said Drumbo didn’t need a development such as this.
“Why would you dump this in the middle of somebody’s backyard? It’s going to create all kinds of havoc for a small town. If this was Toronto and there was a shortage of housing, that would be a different story, but in this town, we don’t have a problem with that,” he said. “You’ve got subdivisions planned on every corner of this town, and then to put 17 units and drop them in the middle of everything that’s there? It’s going to create traffic jams at that corner, there’s going to be a safety issue for kids going back and forth to the park, and there will be all kinds of new traffic problems. …As far as being adjacent to a ballpark, you’re going to have issues with lighting because it’s going to make that whole block like daylight in the evenings and foul balls go over to that area on a regular basis and even if you put up a net, you’re still going to have them go over the top. I just don’t see the need for this in this town.”

Councillor Nancy Demarest then asked Dezell what his primary concern was, and he replied saying it was a combination of everything.
“Projects of this nature belong in a subdivision set aside from the main town or a larger city, not a small rural village like Drumbo. Everybody takes pride in the fact that this is a small rural village, and we want to keep it that way. I don’t think I am alone in that philosophy; I think people in this room and on Council as well do not want to be next door to what this is proposing,” said Dezell. “There will be congestion because you’ve got all those people funneled out through a private laneway onto two dead end streets, so you’re going to push everything through there. Most of the kids in this town that travel to the park or the splash pad on foot, go past that laneway, and that’s going to create a safety hazard in itself. Those are my concerns with this.”
As far as the lights from the baseball diamond, Robson clarified that there would be a clause in all sale agreements that would let future residents know that there will be light and noise coming from the nearby park.
“And [in regards to] the netting, the applicant has agreed to split the costs with the Township in order to put a net around the ball diamond to try and limit baseballs coming that way. I’m sure there are some adults that are going to be able to hit over the netting, but the majority should be caught,” he said. “In terms of an impact on the park, there is a proposed fence that would go in on the south side [of the development] to limit headlights as they’re parking in the common area, from going into the ball diamond during play.”
Demarest later asked the property owner, John Day of Apple Home Builders, what the target market was for the development. He said he was hoping the units would sell for between $575,000 and $625,000 so that both the younger and older generations could afford them.
“There are seniors that maybe didn’t do well all their life and don’t have a million dollars to buy a single detached house. …We’ve got to get affordable housing inside these smaller communities [where there’s] 50 foot lots with $800,000 to a million dollar homes on them. Our younger generation cannot afford that,” said Day. “…With the changes in the tax for the first time home buyer, that’s huge; if you get $600,000 minus 13 per cent tax, you might get a young kid in a brand new home that won’t need repairs or anything for 20 years. …So we’re trying our best to get something brand new in these smaller communities like this with smaller parcels of land.”
Other residents who spoke later continued to bring up their concerns with the cost of condo fees, pedestrian safety, noise complaints, snow removal, maneuvering fire trucks in the area, water and sewage, the lack of street signage for the nearby dead end and speed, and traffic issues caused during construction and after.
While several residents said they were concerned about the lack of a traffic study, Jim Borton, the Township’s Director of Public Works said that 17 units does not warrant one and that it would be better to perform an internal safety study to address everyone’s concerns in regards to four-way stops, traffic calming measures and speed.

Later, Councillor Tina Young said she appreciated that the residents came out to address their concerns, but that as a municipality, they needed to consider smart growth.
“I think from what I’m hearing, this is a plan that has considered the neighbours and the community. We hear that we can’t use agricultural land and we can’t lose our farmland,” she said. “We know that people want to age in place; …that people who have lived in our villages, outside of our villages, or have farm land, are aging and can’t maintain the properties they have, but they don’t want to leave their village. They don’t want to leave their people and there’s nowhere for them to go. So when I hear a plan like this, I think this is exactly what those people need to stay in their community with their people.”
“I hear your concerns, and I’m not negating any of those, but I am in favour of this” continued Young. “I think this is the kind of smart growth we need.”
Councillor Bruce Banbury said he agreed and that issues with safety, noise and light pollution can be addressed over time.
“We’re going to be approaching our upcoming budget in a month’s time or so, we’re thinking about it even now, and our expenses keep going up year after year to provide the services that everyone here requires or would like to have,” he said. “Everything is getting more expensive and harder to find, so while I don’t believe in unbridled growth by any means, I think we do have to have some sustained growth in the municipality to increase the overall assessment so we have more taxation income for the Township to carry on. … I’m very sympathetic to some of your concerns, I might be in the same boat if I lived where you live, but I really think, for the sake of this community, that development [needs to happen].”
Mayor Mark Peterson also mentioned the Township was lucky to break even on residential taxes.
“I know a few of you saw that your water and wastewater rates are going to go up in the Township. Do you know why they’re going up in Drumbo specifically? Drumbo got hit harder than the rest because we’ve had no growth here for ten years because we had no waste treatment facility,” he explained. “Every bill that you pay, a portion of that money goes towards asset management or capital expenditures down the road. …So when it comes to the waste treatment facility, we have to put so much money away over so many years to be able to redo that site because it doesn’t last forever. So to break even in Drumbo alone, we would have to sell 139 homes. …If you think about that, it’s and we are set up to fail. Unfortunately, it took ten years to get a waste treatment facility here, so we had no growth.”
Peterson added that aside from the tax dollars, there is in fact a need for more housing in the village and he thought the new units wouldn’t have any issue selling.
The vote to approve in principle a zone change and support a draft plan of condominium in the village of Drumbo, was then carried unanimously.
Kimberly De Jong’s reporting is funded by the Canadian government through its Local Journalism Initiative.The funding allows her to report rural and agricultural stories from Blandford-Blenheim and Brant County. Reach her at kimberly.dejong@brantbeacon.ca.